REA Hynes (Athlone)

15 Custume Place Athlone, N37 D6H9

Retail (100 m²) For Sale

€250,000

Print additional images & map (disable to save ink)

Photo 1 of 15 Custume Place, Athlone

Telephone:

(090) 647 3838

View Online:

www.reahynes.ie/1038319

Key Information

Address 15 Custume Place Athlone, N37 D6H9
Price Last listed at €250,000
Style Retail
Size 100 m²
BER Rating
Status Sale Agreed
PSRA License No. 002752

Features

  • Prominent three-storey protected building
  • Prime corner position at the junction of Custume Place and Church Street
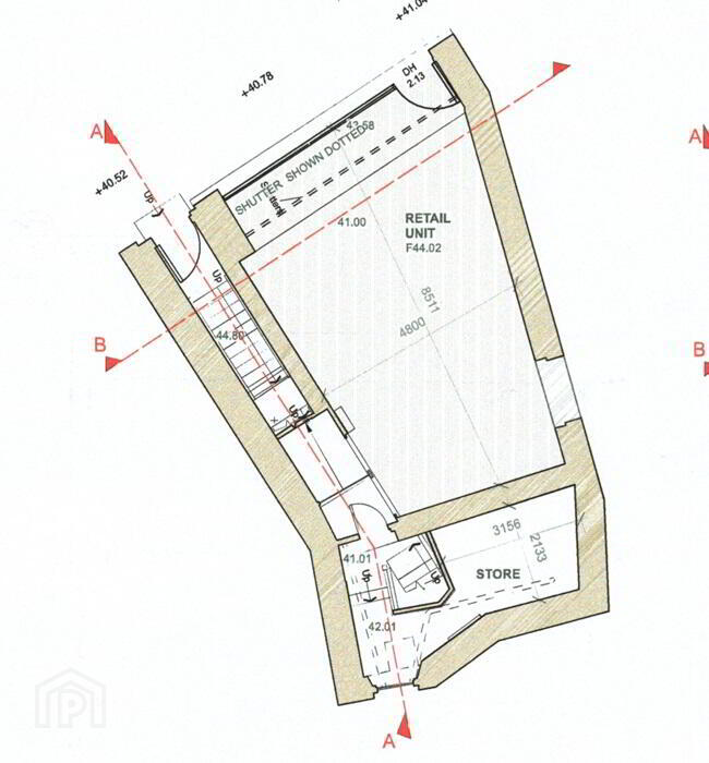
  • Ground floor retail unit with excellent street frontage
  • Overhead accommodation laid out across two floors
  • Full planning permission granted for conversion to two one-bedroom apartments
  • (Ref: 22516)
  • Building dates back to 1840-1860, listed on the National Inventory of Architectural Heritage
  • High footfall location in the heart of Athlone town centre
  • Close to Athlone Bridge, Burgess Department Store, Athlone Towncentre, AIB Bank, restaurants, pubs, and cafés
  • Excellent investment potential with mixed-use income opportunities
  • Planning ref: 22/516
  • Mains Water
  • Mains Drainage

Additional Information

15 Custume Place, Athlone ? Superb Investment Opportunity
REA Hynes proudly presents this rare opportunity in the heart of Athlone town. No. 15 Custume Place is a character-filled protected building dating back to 1840?1860, recorded on the National Inventory of Architectural Heritage. Occupying a prominent corner position at the junction of Custume Place and Church Street, it combines a ground floor retail unit with excellent street frontage, substantial basement area, overhead accommodation arranged across two upper floors.
The upper levels require full renovation, but with full planning permission already granted for conversion into two one-bedroom apartments, the hard work has been done?unlocking real value for investors, developers, or those seeking a live-work setup.
Situated in a busy commercial area with strong footfall, the property boasts a prime town centre location with immediate access to local amenities and public transport.
With mixed-use income potential, historic charm, and long-term growth prospects, 15 Custume Place offers a unique chance to restore and revitalise a landmark building at the very centre of Athlone.
For more information or to arrange a viewing, contact REA Hynes today on 090 647 3838 or email info@hynes.ie

Disclaimer: These particulars are for guidance only and do not form part of any contract. Measurements and details are approximate and should be independently verified. REA Hynes do not hold themselves responsible for any errors or omissions.




Outside

No. 15 Custume Place occupies a commanding three-storey corner position at the junction of Custume Place and Church Street, one of Athlone?s busiest and most established commercial areas. The property offers a ground floor retail unit with excellent street frontage and visibility, ensuring strong passing trade, while the overhead accommodation is laid out across two further floors. Its prominent location places it within immediate reach of Athlone Bridge, Burgess Department Store, Church Street, Athlone Towncentre, Gertie Browne?s pub, AIB Bank, and a host of popular shops, cafés, and restaurants.

BER details

BER Rating:

BER No.: 801108093

Energy Performance Indicator: Not provided


Directions

15 Custume Place enjoys a prime town centre setting close to Athlone Bridge, just steps from Burgess Department Store and Church Street, the town's main thoroughfare. Surrounded by popular landmarks including Gertie Browne's pub, a wide choice of restaurants, Athlone Towncentre shopping, and AIB Bank, the property benefits from excellent footfall and connectivity in one of Athlone's most vibrant commercial areas.

  • REA Hynes

    REA Hynes (Athlone)

    (090) 647 3838

Photo Gallery

Photo 1 of 15 Custume Place, Athlone Photo 2 of 15 Custume Place, Athlone Photo 3 of 15 Custume Place, Athlone Photo 4 of 15 Custume Place, Athlone Photo 5 of 15 Custume Place, Athlone Photo 6 of 15 Custume Place, Athlone Photo 7 of 15 Custume Place, Athlone Photo 8 of 15 Custume Place, Athlone Photo 9 of 15 Custume Place, Athlone Photo 10 of 15 Custume Place, Athlone Photo 11 of 15 Custume Place, Athlone Photo 12 of 15 Custume Place, Athlone Photo 13 of 15 Custume Place, Athlone Photo 14 of 15 Custume Place, Athlone Photo 15 of 15 Custume Place, Athlone Photo 16 of 15 Custume Place, Athlone Photo 17 of 15 Custume Place, Athlone Photo 18 of 15 Custume Place, Athlone Photo 19 of 15 Custume Place, Athlone Photo 20 of 15 Custume Place, Athlone Photo 21 of 15 Custume Place, Athlone Photo 22 of 15 Custume Place, Athlone Photo 23 of 15 Custume Place, Athlone Photo 24 of 15 Custume Place, Athlone Photo 25 of 15 Custume Place, Athlone Photo 26 of 15 Custume Place, Athlone Photo 27 of 15 Custume Place, Athlone Photo 28 of 15 Custume Place, Athlone Photo 29 of 15 Custume Place, Athlone Photo 30 of 15 Custume Place, Athlone Photo 31 of 15 Custume Place, Athlone

Location

Visit www.reahynes.ie for further details.